土地の大きさ
、
南北35m程度、
東西12~14m程度で、500㎡になります。
(作業場の取り壊し後は東側にも大きく空きます)
東側:広く空きます。
北東方向:
竹が繁茂しています。
北側:ずっと開けています。
さらに北側は田んぼです。北風が強く吹いてきます。
南側:自宅への進入路と父母宅(平屋だが屋根はけっこう高い)。
さらに南側は大きく開けています。
西側:用水路、その横に6m道路
接道 西側が約6m道路ですが、
間に用水路(幅1m程度)がずっとあります。
普段は水はほとんど流れていません。
父母宅からの排水程度です。雨が降ったりするとけっこうな水流が有ります。
現在も使用している父母宅などと同じ橋を渡って、
そこから建設予定地に行く形になると思います。
周辺状況
10~20m程度の山に囲まれており、
手入れをしていない(すみません)木々が茂ってしまっています。
そのため朝日が遅く、日の入りが早いです。
冬だと8時頃に陽が当たり始め、2~3時には太陽が陰ってきます。
用途地域 指定なし
家族構成
現在、夫婦2人だけですが、6月に第一子が生まれる予定です。
将来的には兄弟姉妹が欲しいと考えています。
間取りの希望
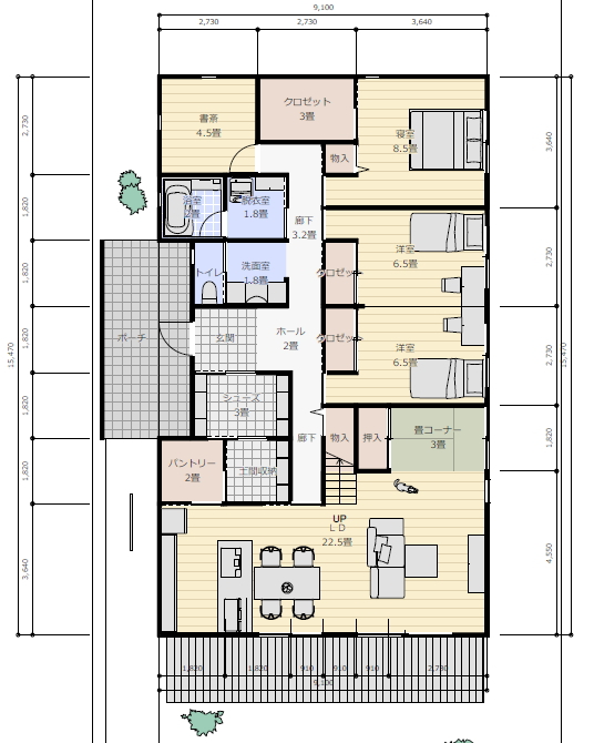
〇階数:平屋建て
(子供が小さい時の子供部屋として
ロフト的なスペースがあるといいかなと思っています)
〇建物の規模:40坪程度
〇必要な部屋&間取りの要望
・L・D広く
(まさに、ご飯をそこで食べて、
そのまま寛ぐ感じの生活スタイルです)
天井が高く(斜め天井も有り)、
大きな窓の部屋。
2~3畳程度の小上がりの畳スペースがあるとなおGoodなんですが・・・
・K~二人で作れるような広めのキッチン。
対面キッチンを希望(アイランドはNG)
・主寝室には大きめのウオークインクローゼット
・子供部屋的なもの
(将来的には区切って使えるような大きめの部屋)
兄弟が増えた場合に部屋として使えるようロフトがあるといいかなと
(子供が巣立つと物置に)
この部屋に収納を2ヶ所
(区切った場合もそれぞれに収納があるように)
・持ち帰り仕事が出来る部屋
(持ち帰り仕事が多いので、家事しながら行き来しやすい場所に。
部屋の形や日当たりは悪くてもいいです。
物も置くのでソコソコのスペースが必要です。イメージは3畳程度。
壁一面ず~っと棚があると便利です。ピアノをひきます)
・玄関⇒シューズクローゼット&土間収納
⇒冷凍庫のおけるような広いパントリー
⇒①キッチン&⇒②洗濯用品や洗剤などの収納、
という動線が出来るとベスト。
車で動く地域なので、車での買い物帰りの荷物を降ろして仕舞いやすく。
土間収納というか、外で使うものを収納しておけるスペースが欲しいです。
・広めの脱衣所⇔家事室
(洗濯物を干したり畳んだりしまったりの部屋。上記の②につながる)の動線
・洗濯物を室内干ししておけるスペース。
できれば日当たりのいい側に。
・浄化槽の地域です。
水回りの並びの最上流を風呂にしたいです(詰まり予防のため)
・建具は、ドアではなく、出来る限り、引き違い戸を希望です。
