今回は18坪1 LDK の一人暮らしの平屋の間取り2プランを解説していきます
今回はコメントにお答えして間取り作っていきます
間取りの要望:
18坪の平屋で猫6匹と一緒に住める間取りお願いします
できればキャットウォークを入れ全体に設置したいです
一つ目の間取りはリビングと寝室に南から光を入れるようにするパターンと
もう一つはリビングダイニングキッチンを南に配置して
寝室を北に配置するプラン見て行きます
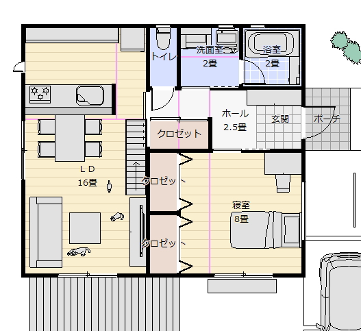
こちらの間取りは東玄関にしてありますけれども
東西を反転すれば西玄関でも使えます
側面にドアがあるので南道路でも北道路でも
全ての道路の方角で使っていくことができるプランになってきます。
東玄関から入っていてシューズボックスがあって
南に寝室8畳クローゼットが2畳、洗面脱衣室が2畳、
浴室が一坪タイプ、トイレ1畳、
ホールの一角に洋服とかコートとかがかけられるクローゼットがあります。
そして奥の方に入っていくとリビングダイニングキッチンが16畳、
リビングダイニングキッチンと寝室は南の方の庭の方に出ることができます。
ビングの南の方には掃き出し窓が付いていてウッドデッキが付いています。
対面式キッチンの背面の収納は広くて、
ダイニングのテーブルもリビングもゆったりとソファーが置けるプランです。
ダイニングは友達と談笑するため四人がけにしてあります。
臨機応変に二人のテーブルにしてもいいと思います。
キャットウォークに上がるための小さなロフトへの階段があります。
掃除とかメンテナンスしなければいけないので
ハシゴよりは階段で登った方がいいかなというところです。
キャットウォークはロフトみたいな状態で猫が歩けるような感じです。
こちらのプランの方は南側の方にリビングダイニングキッチンが18畳で
リビングダイニングキッチンの方に力を入れていくプランです。
LDK の方から引き戸で開放できる寝室にがあります。
寝室は7畳でクローゼットが2畳に先ほどと同じ東玄関になっています。
洗面室2畳でこちらは寝室7畳にするために
浴室を1.5畳0.75坪タイプにしています。
一人暮らしなのでそんなに大きなバスじゃなくていいと思います。
マンションと一緒ぐらいのタイプなので慣れればそんなに小さくはないです。
寝室からトイレに行きやすいように ドアを二か所つけています。
