平屋間取り

中二階のある平屋の間取り図 蔵収納のある住宅プラン

※土地の大きさ 74.23坪

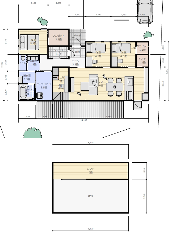
※中二階がある平屋建て

※建物の規模29坪程度

※必要な部屋 子供部屋が将来区切れる
4.5×2で9畳ほしいです

LDK20畳

子供部屋と主寝室は離してほしいです

主寝室はウォークインクローゼット含め5畳程度

キッチンは対面キッチン

リビングに中二階(3畳)ほしいです

駐車場4台

家族構成
家族は4人で夫婦と子供が2人です。

 

モバイルバージョンを終了