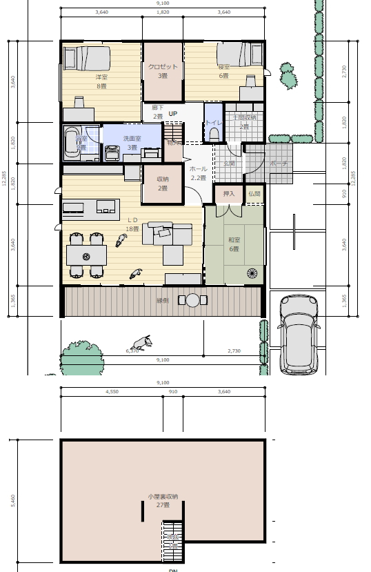
敷地の大きさ:
19M×13M 東道路
建物の規模:30坪3LDK 平屋建て
必要な部屋:
LDK18畳
和室 6畳 押入れ 仏間
洋室 8畳
洋室 6畳
ウォークインクロゼット 3畳
パントリー 2畳
土間収納 2畳
洗面脱衣室 3畳
トイレ 1畳
浴室 2畳 1坪タイプ
小屋裏収納 27畳
間取りの要望:
対面式キッチン
仏間リビングに隣接
リビングダイニング天井高い
階段で登る小屋裏収納
キッチン横に収納
屋根付きの半屋外ウッドデッキで
縁側の空間を作る
駐車場 1台 来客 1台
家族構成:夫婦二人
