敷地の大きさ:
18M×12M 南道路
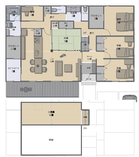
建物の規模:
42坪 5LDK
平屋建て
必要な部屋:
LDK 22畳
和室 6畳 押入れ 床の間
洋室 6畳 2室 クロゼット1畳 各部屋に欲しい
寝室 8畳 ウォークインクロゼット 3畳
テレワーク書斎 3畳
部屋干しランドリースペース 3畳
ファミリークロゼット 3畳
脱衣室 洗面室 浴室 2畳
トイレ 2か所
間取りの要望:
南側に部屋干し室
リビングに隣接して畳コーナー
トイレは2か所必要
ファミリークロゼットを脱衣室のそばに作る
キッチンとダイニングテーブル縦並びに配置
書斎は北側に配置
ベッドルームは東側が良い
KDKは明るい配置
家族構成:夫婦子供二人
