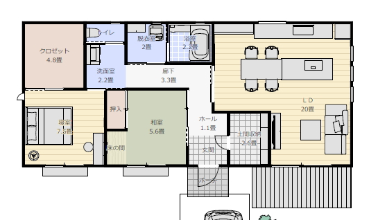
今回は28坪2LDKの1人暮らしの平屋の間取りになります。
今回の間取りは寝室と洗面とかトイレが近くにあります。
これは老後や高齢者、などユニバーサルデザインを意識した住宅プランです。
玄関ホール入ってすぐに土間収納が2.6畳、広いのがあります。
リビングダイニングキッチンは20畳と広く
このリビングダイニングキッチンはアイランドキッチンで
ぐるぐると回遊性がある間取りになっています。
みんなが家に来てご飯作りたくなるような
集まって来たくなるようなキッチンを目指してます。
20畳のLDKですから広い感じで余裕があります。
和室は客間として利用するスペースになります。
洗面と脱衣室、分けられており、来客が手洗いを使うのに便利です。
お風呂とトイレ洗面に近い寝室は庭に面して明るい部屋になっています。
外観は濃いグレーでモダンな印象の平屋になり
落ち着いた色は若い施主や高齢の施主まで幅広く好まれます。
