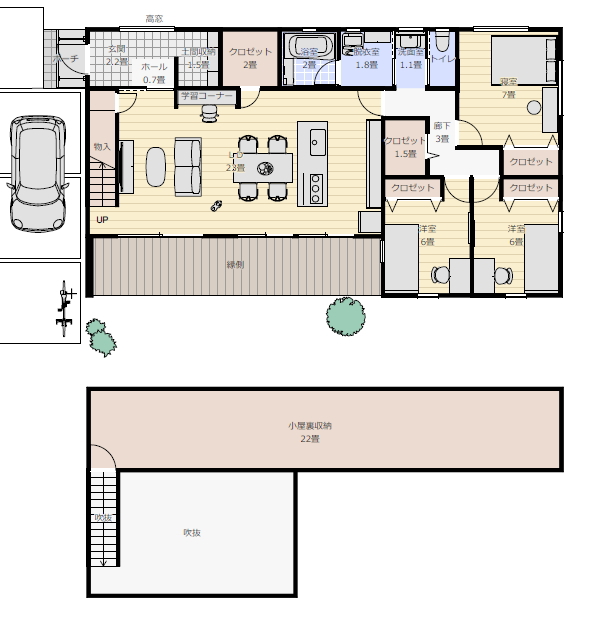
今回紹介するのは32坪3LDKの平屋の間取りです。
家族で住めるような3LDK の間取りで西玄関になってます。
南側の方に屋根付きの縁側のある間取りになります。
屋根の高いところにロフト収納、階段であがるロフト収納が付いています。
テレビの背面の所にロフトへの階段があってロフトがあります。
学習コーナーとかアイランドキッチンとか
リビングのところにファミリークローゼットがあります。
キッチンの辺りに水回りがまとめられて家事動線もコンパクトで
使いやすいようになってます。
南の方に子供の部屋が配置されてます。
間取りの方は西道路になっていて西側に駐車場1台、
停めて西から入ってきます。
玄関ホールに入っていくと土間収納がありシューズクローク的な感じで使います。
リビングにキッチン23畳の広いリビングダイニングキッチンに入っていくと
平屋で上に部屋がないので屋根勾配なりに天井が高くなってます。
学習コーナーとアイランドキッチンがあってキッチンの付近が便利で
使い勝手の良い間取りになっています。
リビングは縁側と一体化して広く見えるようなインテリアになります。
キッチンのすぐそばに脱衣室とか水回りがあり使いやすくなってます。
ファミリークローゼットがリビング収納的に使うことが出来、
家に帰ってきて鞄を置いたり服を入れるところあります。
他の所にもファミリークローゼットがあって下着とか入れられるようになってます。
寝室7畳は東の方にあって南の方に六畳の部屋が二部屋
各部屋にクローゼットが付いています。
ロフトの方はこのテレビの背面を上っていく感じになって
2階に上がっていくとこのリビングの上だけ吹き抜けて勾配天井になります。
