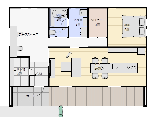
平屋間取り 一人暮らし
敷地の大きさ:
15M×17M 南道路
建物の規模:
木造平屋建て
必要な部屋:
LDK 20畳
寝室 8畳
洗面脱衣室3畳
浴室 2畳
トイレ1畳
ワークスペース 10畳
間取りの要望:
キッチンは対面式
キッチンダイニング横並び一直線
アイランドキッチン
フルフラット
背面の収納広い
リビングダイニング南に大きな開口
キッチンから南の庭が見える
ワークスペースは玄関につながり
行きやすいスペース
寝室は東側
広いシューズクローク兼土間収納
寝室から洗面トイレ行きやすい
駐車場へ入れる二台
南に庭がある戸建て住宅
家族構成:
一人暮らし
