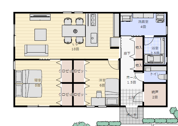
平屋間取り 2ldk
敷地の大きさ:
15.5M×13M 南道路
建物の規模:
26坪2ldk木造平屋建て
平屋間取り
必要な部屋:
LDK18畳
寝室 8畳
クロゼット 2畳
洋室 6畳 1室
クロゼット 2畳
洗面脱衣室 4畳
浴室 2畳 1.25坪タイプ
トイレ 1か所 1.5畳
納戸2畳
間取りの要望:
対面式キッチン フルフラット
寝室南側 LDK北側
家事動線の良い家
キッチンから洗濯機へ行きやすい
部屋干しの出来る広い洗面脱衣室
廊下にも収納
南に庭
ウォークインクロゼットは要らない
駐車場 1台
家族構成:
夫婦子供1人
