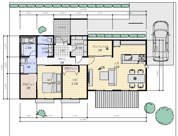
平屋間取り 3ldk 老後
※土地の大きさ 間口18M 奥行き20M 102坪
※階数 平屋
※建物の規模 25坪程度
※必要な部屋
玄関 大型犬が入れる大きさ
SIC(玄関の下足は不要)
LDK18〜20畳 庭に面して横長希望です
寝室6畳〜WIC〜洗面〜ランドリー脱衣〜風呂1620サイズ
うまいこと導線が繋がったら嬉しいです
客室 4.5〜6畳
トイレ 寝室の近くに欲しいです
ペットスペース3畳
部屋として出なくてもリビングのテレビの裏側などを
L字で囲うだけでも良いです 。
※家族構成
現在は夫婦と娘2人ですが、夫婦で住みます
平屋間取り 3ldk 老後
