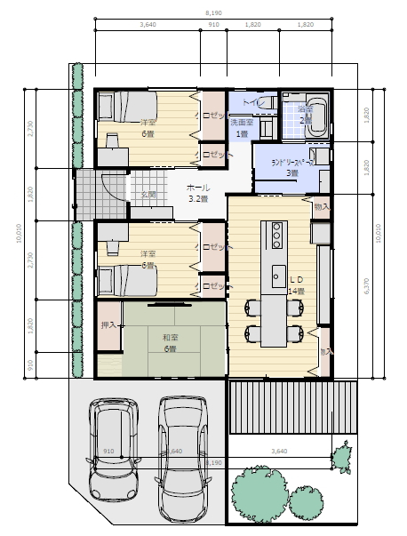
平屋間取り 老後
敷地ですが南西角地、南面が10m 西面が16mです。
南面は歩道を介して2車線の幹線道路に面し
西面は5m位の脇道です。
家族構成は私と家内の二人です。平屋が希望です。
普通自動車2台分の駐車スペースが必要です。
間取りの希望として夫婦それぞれに個室があり
持ち物は各自の部屋に収納しますので
共同で使う大型収納などは不要で
各部屋に一間半のクローゼットがあれば良いと思います
LDKスペースは狭くてよいのと、
息子が泊まりに来た時に仕切りができる和室が希望です。
この和室のスペースがリビングを兼用するような
間取りが良いと思ってます
和室には子供が来た時用の寝具が入る収納と
仏壇を置くスペースが必要です。
その他収納計画として、
食器棚などは小型でごみ箱スペースがあり背の低い物、
食料のストックや洗剤などを最低限保管できる場所
洗車用の洗剤や高圧洗浄機や工具と
ゴルフバックを一つ置くスペース。
南面が交通量が多く渋滞も良く発生する幹線道路なので
こちらに向けての大きな開口はプライバシーや騒音の面で心配、
同じく洗濯物の外干しも難しそうなので
室内に干す場所が欲しいです。
ソファーなどは設置する予定はなく
4人掛けのダイニングテーブルを置くつもりです
リビング兼和室に基本的に家具は置かない、
もしくは小型のテーブルを検討。
テレビはこの和室に壁掛けしてテレビ台を置かないようにする。
Wi-Fiルーターを隠すように設置。
平屋間取り 老後
