※土地の大きさ
縦横正方形で20メートル程度まで建築可能です
※接道 東側と南側方向が家に入ってくる私道になっています
※階数 平家建て
※建物の規模 40坪〜最大でも45坪程度
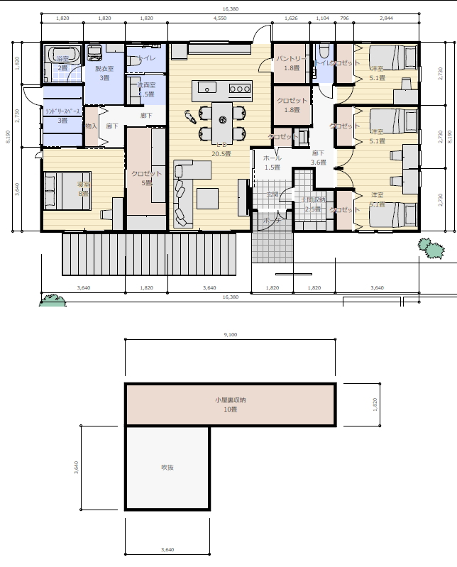
※必要な部屋
・4LDK(リビングはアイランドキッチン設置、寝室1、子供部屋3)
・パントリー必要
・トイレ2つ
(1つは、玄関付近に。もう1つは、寝室近くに配置
・土間収納必要
・ランドリールーム必要(物干し2本以上干せるスペース)
・広めの脱衣所(家族分の下着などは脱衣所に置く予定です。)
・バスルーム
間取の要望
・子供部屋3部屋のうち、
2部屋はつなげて後から仕切れるようにしたい。
・南向き玄関、南向きの建物で、
リビングと夫婦の寝室を南に設置
・子ども部屋は1畳程度のクローゼットをいれて
6畳程度あれば十分です。
・リビングから直接外に出て行ける勝手口希望
・寝室には、大型クローゼット必須。
(洋服をほぼすべてハンガーにかけて収納する生活習慣であるため)
それに伴って多少広くなっても問題ありません。
・トイレ2つ
(玄関付近に通常サイズのトイレ一つと
寝室近くに車いすなどでも使用できるサイズのトイレ一つ)
・玄関付近のトイレ近くに手洗いスペースが欲しいです。
・脱衣所に家族の下着などはまとめて収納するので気持ち広めに。
・独立したランドリールーム
(物干し竿2本がゆっくり設置できる広さ)
・土間収納必要
・パントリ―必要
・細かく要望しておりますが、
一番にこだわりたい箇所は、
効率的な家事動線です。
※家族構成
家族は、今のところ3人ですが、
子どもはできるだけたくさん欲しいと考えています。
