土地の大きさ 北道路 開口10M 奥行18M
接道 北側6M幅、東側4M弱幅で全面接道
用途地域 1種住宅
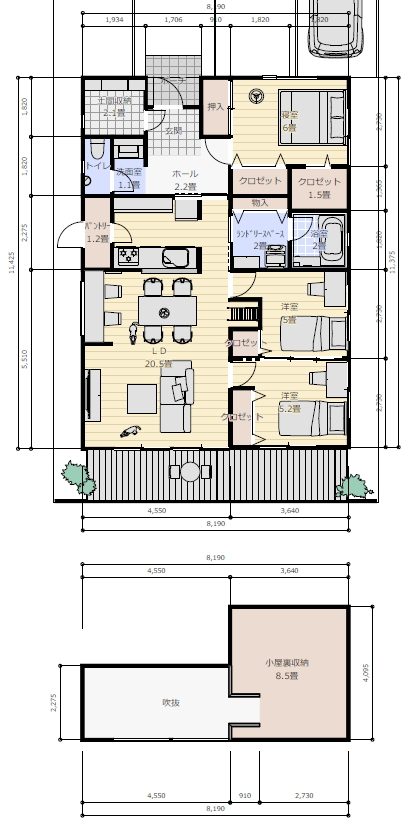
階数 平屋希望
規模 28~30坪
家族 4人(夫婦と子供2人)
部屋等 子供部屋4.5畳(クローゼット必要)を続きで2部屋
(将来1部屋にもできるように初めから仕切りは可動壁にしておきたい)
寝室6畳(クローゼットと、布団を収納できるスペース必要)
LDK18畳くらい PC(学習)スペースがほしい
洗面と脱衣室は分けたい(脱衣室で洗濯物の屋内干しをしたい)
トイレは中に手洗いをつける
玄関の土間収納やパントリー、
洗面所の収納など、
使うところで収納が出来たら良い
リビングは、外からの視線を気にせず
カーテンを開けれるようにしたい
駐車場は4台分確保したい、庭は不要
南側は賃貸コーポ2階建てが、
敷地の北側に寄って建っている
西側は同じ大きさの分譲地(北のみ接道)
どうすれば採光を効率よくできるのか??と考えています。
