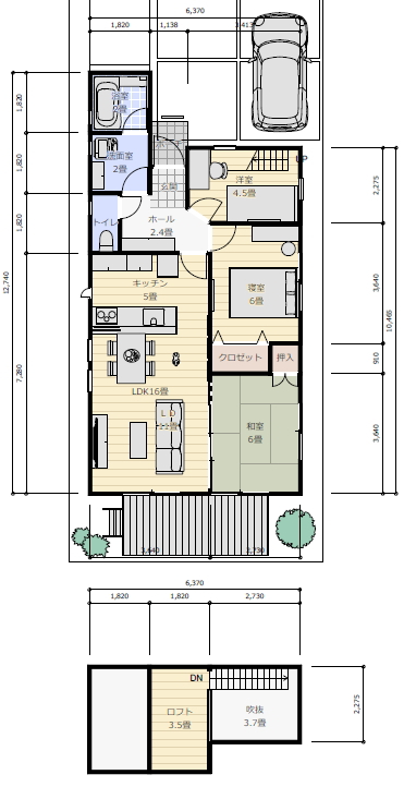
リビング北側に配置
※土地の大きさ 間口7.70m 奥行き 17.67m
※接道 北道路
※用途地域 第2種住居専用地域 (準防火)
壁面後退
※階数 平屋
※建物の規模 21坪程度
※必要な部屋
LDK15帖
和室6帖
寝室6帖
洋室4.5帖(ロフト付き:出来れば固定階段)
浴室1坪タイプ
洗濯物の部屋干しスペース希望
駐車場
3ナンバーセダンタイプ1台
フィットクラス2台
間取の要望
ダイニングには1500mm程度のテーブル、
リビングには3人掛けソファー
可能であれば、将来車いす生活になっても、
住みやすい間取り希望です。
浴室、トイレ窓不要です。
南側両隣は、4m程度空いていますが、
南側はぎりぎりまで建っています。
和室は、子供、孫達が泊まれるように、
と家族が集まって食事ができたら良いと思っていますので、
リビングに隣接が希望です。
洋室は、書斎や、寝室に使用したく、
ベッド、小さいクローゼット、作り付け机があり、
固定階段でロフト希望です。
※家族構成 夫婦2人です。
