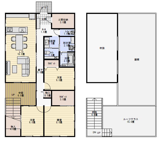
今回のプランは33坪3LDKのルーフテラスのある平屋の間取りになります。
間取りの方は北道路の想定になっていて北側に駐車場を3台駐車可能です。
南の方に玄関ポーチがあって玄関ホールが3畳ぐらいの広さです。
そして土間収納が付いています。
玄関ホールの方にはシューズボックスもあって
こちらの方はカウンター形式のシューズボックスになって
見えるように後は何か小物を置けるようにしてあります。
そしてリビングダイニングキッチンの方が18畳でキッチンは対面式です。
キッチンの方からはダイニングとリビングが見渡せるようになっており、
また LDK の南側には中庭が広がっています。
キッチンからはダイニングリビングごしに中庭を見る形になります。
その南側に階段で外階段で登っていくとルーフテラスへの入り口階段があります。
階段を上っていくと屋上になります。
平屋ですので屋上のルーフテラスになります。
15畳ぐらいの広さになっていています。
LDKの上部は勾配天井になっており、
LDK の方に東から光を入れるような形にしてあります。
LDK の方は南の中庭からと東の上部から光が入ってきて
屋根は勾配天井になってますのモダンで開放的な快活なプランになります。
そしてリビングダイニングキッチンの東側の方には
洗面脱衣室があり1.2 M の幅広の洗面台になります。
洗面台のすぐ横にはトイレが1.5畳と1畳のトイレが2箇所あります。
家族で住んでる場合一つだけだと混雑する場合があるので2箇所設けてあります。
一つのトイレはタンクレストイレになっていて、
手洗いカウンターが収納になっているので
広くゆったりとしたトイレになっています。
脱衣室の方にも収納が取れているので使いやすい間取りになっています。
子供部屋の方は6畳の部屋が二部屋あります。
一部屋は南側に配置されていて中庭のある北側にも窓があります。
屋外階段の下を利用した収納が非常に広いスペースが付いています。
もう一部屋の方は1畳のクローゼットがあって
東側に窓が配置されてる部屋になります。
寝室の方は8畳にの広さで南の方には庭に面して窓が取られています。
また東の方に窓も取られており対角線上に窓が取られていることで
風通しの良い部屋になっています。
ウォークインクローゼットが3畳で廊下には共用の物入れがあります。
全体の構成としては中庭を囲んだ3 LDK の平屋の間取り例で33坪の広さです。
靴で外の屋上に登っていくルーフテラスのプランなっているので
鉄筋コンクリートの住宅であれば全く問題ないと思います。
